研集明选丨家装干货丨浴室美的程度,要看我们如何避开坑了,让门我说说卫生间分配区域。

一切从颜值出发。
既然上一篇大家已经从楼楼整理的4种风格的卫生间找到所属了。那么今天咱们就深入浅出的来讲讲更重要的动线/分布。
哇!好高深的名词。
其实意在根据平时的生活状态及习惯,来设计让家人舒服的区域布局和走动路径。
简单来说,卫生间分配的区域有:
丨洗漱区
顾名思义,平时洗脸刷牙的地儿,有些还得兼顾女王化妆的需要;

丨如厕区
五谷杂粮轮回之所。干净、舒适是第一原则。不易堵塞是最低要求。

丨淋浴区
淋浴房的好处在于,淋浴的脏水不易冲溅到外面,方便打理。

用浴帘的,成本较低。但洗澡时,会贴在身上很烦。逐渐老化的问题,倒是刚好能找到理由,时不时的换个浴帘。
还有啥都不用,直接裸着的。那么最大的烦恼是,洗完澡,到处都是水。虽然你有个强悍的地漏,但免不了还得将马桶和地面都抹一遍。大夏天,抹完一遍又浑身是汗。当然还易出现小朋友或老人滑到的风险。所以除非万不得已,否则还是建议尽量淋浴房或浴帘选择其一吧。
丨洗衣区
是否需要把洗衣机放到卫生间,这与个人习惯和居住环境的条件有关。

洗衣机放在卫生间里的好处在于,洗完澡脏衣服就能丢进去了,这是优点。弊端是卫生间潮湿,对洗衣机的电路板、防霉都有更大的挑战。每次还需要将衣服洗完,放到干净的盆或篮子里,带到阳台上晾晒。所以还有许多家庭会将洗衣机放在阳台上。
那洗衣机会被晒黄吗?靠谱的洗衣机牌子,一般会跟你说5年内确保不泛黄。当然阳台上也相对干燥些。
丨浴缸区
“奢侈空间”,不一定家里非得有个非常大的空间才能享受泡浴。

虽然有地儿放浴缸,可1年也就用那么几次的大有人在,比如楼楼我。反之,在日本看到许多即便是30平米的小公寓,也还是能看到卫生间有个迷你版的浴缸。这取决于对生活的要求和喜好。
那么上述的区域与动线有啥关系?
家里空间的大小、人口、习惯决定了各区域的部署方式,各有不同。
先来看看几种不同的分区方式:
一、典型的干湿分离

洗漱区挪出洗手间的优势在于,无论早上洗漱或到家洗手,与如厕或淋雨的家人互不干扰。使用效率和体验会大大提升。
二、同一区域内完成三分区

酒店客房或家中的主人房采取这样的设计尤为多。
夫妻的亲密关系在这样的分区方式内,自由,但又符合功能性的需要。也能够很好的隔离湿气。
三、看似复杂却有序的4分区

不多见。复杂,对空间要求更高。同时对卫生间能够有如此清晰明确要求的人并不多。
但能做到这种构思,房屋条件又允许的话,体验会不错。不过以楼楼面对设计的情况来看,根据实际需要,灵活应对,适当增减,调优到最适合自己才是重点。
既然说到分区在动线中的重要性。那么实操方面哪些是可以参考借鉴的。
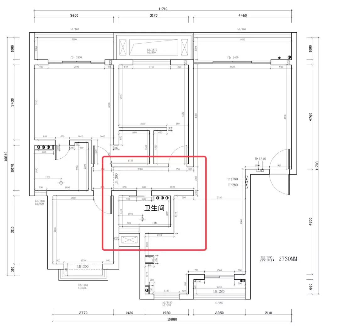
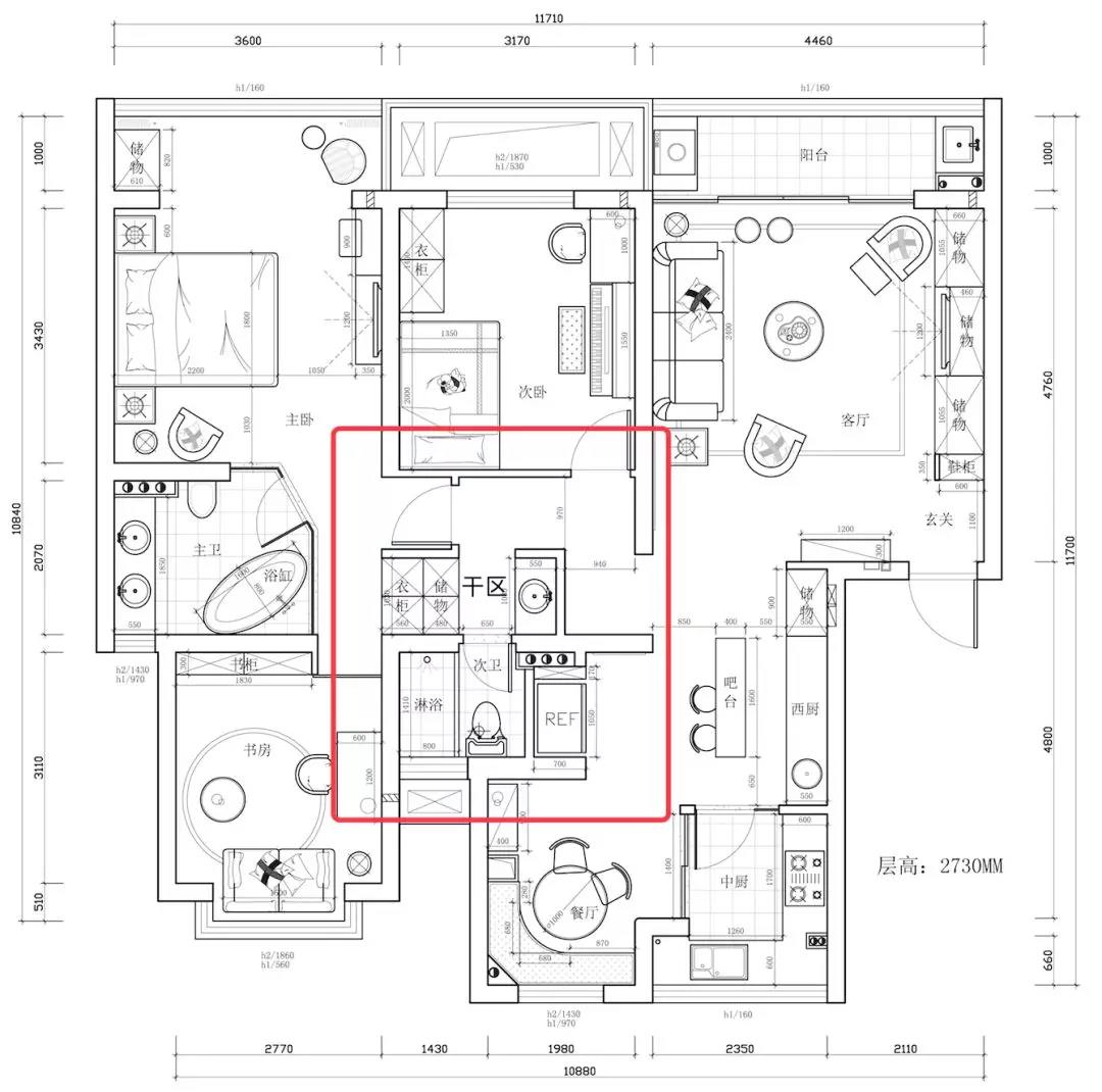
空间怎么偷?给大家看看撸主家里的设计改造图。

原本的次卫太小,洗漱、嗯嗯、洗刷刷没一个爽的。

现在不同了,拿掉了主卧鸡肋尺寸的衣帽间和次卧尴尬的衣柜,足足腾出了一个走廊。干区就“偷”到了空间。嗯嗯和洗刷刷的空间都相对变大了。晚上,妈妈给宝贝洗澡,也不影响老人在干区的洗漱了。
更多的储物空间
干湿分区后,运用得当,会增加许多储物空间。
想要热水来得快,装个小厨宝,摆在台盆柜下面,日常洗脸、刷牙、洗个头完全没压力(注意要买个10升的)。还能把吹风机的架子装在柜门上。一些洁厕剂等等都放在里头,门一关,“世界清静了”。

现在不同了,拿掉了主卧鸡肋尺寸的衣帽间和次卧尴尬的衣柜,足足腾出了一个走廊。干区就“偷”到了空间。嗯嗯和洗刷刷的空间都相对变大了。晚上,妈妈给宝贝洗澡,也不影响老人在干区的洗漱了。
更多的储物空间
干湿分区后,运用得当,会增加许多储物空间。
想要热水来得快,装个小厨宝,摆在台盆柜下面,日常洗脸、刷牙、洗个头完全没压力(注意要买个10升的)。还能把吹风机的架子装在柜门上。一些洁厕剂等等都放在里头,门一关,“世界清静了”。

“偷”来的空间当然远不止此。过道不是白白占用的。平时,与卫生间相关的东西有哪些?。整包整包的卷纸、湿纸巾,大瓶大瓶的沐浴露、各种洗护用品、浴巾……有个会囤货的持家少奶,你能理解会有多少东西出现在这里吗?反正楼楼家的台盆柜后头的大柜子里是满满当当的。

反过来想想,要是没有这么个大柜子,这些东西你得往哪儿放?这些确实得益于当时设计师大胆的设想和空间的利用。
当然任何选择都不是绝对的。是否干湿分离,区域怎么安排,关键还看能不能满足自己的日常需要。
以下给几个小贴士:
1、尽可能用壁挂式的浴室柜

因为底部留出的空间可以方便放入小朋友的踩脚凳和体重秤;

2、颜值即正义。
所以干区和马桶区完全可以用隐形地漏。淋浴区内用大流量地漏;

3、柜门也要充分利用起来,悬挂电吹风或小物件都很方便;
4、如果浴室柜里面要放小厨宝,尽量选择容量大的;
